Sale a licitación la rehabilitación de la Casa Natal de Isaac Peral

El importe de los trabajos, que incluyen tanto el exterior como el interior del inmueble, se ha presupuestado en 264.987 euros y contará con un plazo de ejecución de 10 meses


Sábado 17 Octubre 2020  |  Visto: 3.141 veces  |  Audio  |  Versión Imprimible


Casa Natal Isaac Peral


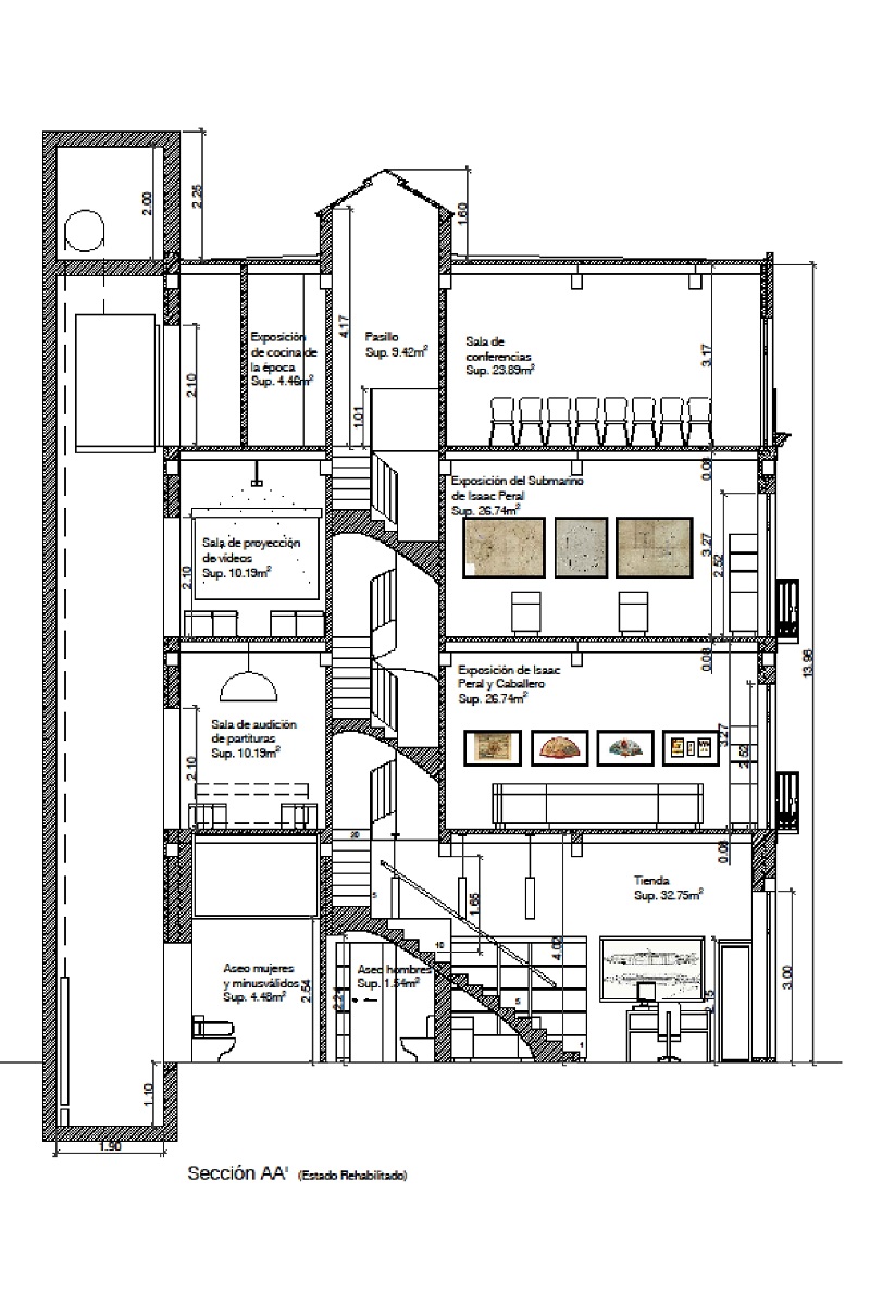
El proyecto básico y de ejecución de rehabilitación de la Casa Natal de Isaac Peral y Caballero, situado en el callejón de Zorrilla número 3, ya se encuentra en fase de licitación. El importe de los trabajos se ha presupuestado en 264.987 euros y contará con un plazo de ejecución de 10 meses.

La alcaldesa y responsable del área de Patrimonio Arqueológico, Ana Belén Castejón, ha explicado que “con estas obras queremos que los cartageneros y visitantes puedan profundizar en la figura del genial inventor cartagenero, conociendo no sólo el lugar en el que nació sino también cómo fue su vida, gracias a la colección de objetos donados por Diego Quevedo que se instalarán en los distintos expositores”.

Las obras contemplan la rehabilitación tanto del exterior del inmueble como del interior e incluyen un refuerzo en la seguridad de estructura, los accesos y el interior, la protección del edificio frente al ruido, instalaciones con criterios de eficiencia energética y sistema de acondicionamiento ambiental.

De esta forma, se eliminarán elementos distorsionadores de la fachada, tales como una antena parabólica, algunos hierros empotrados, la bajante de pluviales o el cableado que está sujeto a la altura del primer forjado y que debe ser soterrado.

Cabe recordar que se trata de un edificio de 4 plantas con unos 200 metros construidos, del que el Ayuntamiento quiere mantener la fachada, los interiores, los forjados originales, la baldosa hidráulica de la escalera, que debe ser mantenida y restaurada al igual que el pavimento original y la estructura de madera, con el objetivo de que en ella se pueda contemplar cómo era una vivienda típica de la Cartagena de finales d siglo IXX.

Tal y como ha recordado la alcaldesa, este proyecto está enmarcado en el Plan de Rehabilitación Integral del Casco Antiguo y servirá para “continuar ampliando la oferta turística de Cartagena ya que, en unos pocos metros de distancia, la ciudad contará con dos nuevos museos, la Casa-Museo de Isaac Peral y el del Barrio del Foro Romano, cuya ejecución está prácticamente concluida”.

Volver al listado



 
*

Información gestionada por el Gabinete de Comunicación, Protocolo y Relaciones Institucionales del Excmo. Ayuntamiento de Cartagena.
Palacio Consistorial. Tel: 968128810
Email: prensa@ayto-cartagena.es
Instagram: @aytocartagenaes
X: @AytoCartagenaES

Galería de Imágenes.


  Noticias Más Vistas

Galería

  • Fecha de última revisión de esta sección: 04/04/2026
  •  / 
  • Fecha de última actualización del portal: 04/04/2026

Los portales de internet del Excmo. Ayuntamiento de Cartagena únicamente utilizan cookies propias con finalidad técnica, no recaban ni ceden datos de carácter personal de los usuarios sin su conocimiento. Sin embargo, contienen enlaces a sitios web de terceros con políticas de privacidad ajenas a las de dichos portales del ayuntamiento que usted podrá decidir si acepta o no cuando acceda a ellos.

Aceptar todas Rechazar todas Configurar